Model #3 Colonial Mill House | 30x42
Model #3 Colonial Mill House
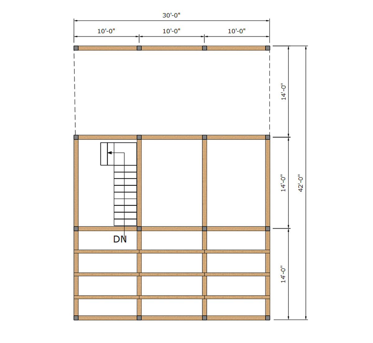
30x42 | 2,100 square feet
Starting at $85,756
This Colonial timber frame building closely resembles Harvest Moon’s own workshop. Spacious and thoughtfully designed, it offers remarkable versatility for nearly any purpose from a classic garage or storage barn to a functional workspace or animal shelter. Inside, the layout features a generous 30×28 loft and a stunning 30×14 cathedral area, creating an open and airy environment that highlights the beauty of exposed timber framing.
Quoted in full dimension rough sawn hemlock timbers.
HOW DO YOU IMAGINE USING YOUR BARN?
Smaller Barns
Garden or Potting Shed
Tool Shed
Maple Sugar Shack
Smoke House
Out House
Wendy House
Firewood Shelter
Fort
Pool Cabana
Larger Barns
Barn Home Garage / Tractor Barn
Workshop
Horse Barn
Hunting Cabin / Cabin
Studio
Accessory Building
Garage & Apartment
Guest House
WE SOURCE OUR TIMBER IN THE USA
Rough Sawn Hemlock
Planed Hemlock
Rough Sawn Pine
Planed Pine
Rough Sawn Douglas Fir
Planed Douglas Fir
Rough Sawn Red Oak
Planed White Oak
See options below so you can make this barn your own.
Lean-To’s
• Open Air (partially or completely)
• Enclosed (partially or completely)
Length of Barn
Add or subtract a “Bay or Bent”
Roof Overhangs
• Increase or decrease the size
• Straight Cut or Plumb Cut
Barn Doors
• Sliding Barn Doors
• Swinging Barn Doors
• We will make any size you like
Cupolas
• Decorative
• Functional
Timber Frame Accents
• Add a hood over your man door
• Add a rain guard over your garage doors
Gable Peaks
Widow’s Peak / triangular or boxed
Removal of undesired mid-floor posts
Create a structural Truss
• Hammer Beam Truss
• Scissor Truss
• King Post Truss
Insulation
Any of our kits can be insulated without taking away from the frame’s beauty
Raise or lower the wall heights
Loft Area
• Decrease or increase your loft area size
• Create a catwalk
Change your Timber Species
Hemlock, Pine or Douglas Fir
Change your roof pitch
Steeper or shallower
Flexibility is what Harvest Moon does best; please make sure you get exactly what you want.
Typical Kit Inclusions & Exclusions
What's Included
Included in All Kits
- Design Plans
- Architectural elevations & section drawings
- Joinery detail
- Foundation plans
- Engineered and wet-stamped shop drawings including designed foundation / all 50 states
- Pre-Cut Timber Frame
- Species
- Eastern Hemlock / Eastern White Pine / Douglas Fir / Oak
- Rough Sawn / full dimension or planed smooth / nominal dimension (1/2” under)
- Traditional wood joinery with hardwood pegging / no visible metal fasteners
- Posts / typically 8×8’s
- Tie Beams / typically 6×8, 8×8, 8×10 depending on span
- Plate Beams / 8×10, 8×12, 8×14, 8×16 > 8×20 for longer spans
- Ridge Beams / 8×10, 8×12, 8×14, 8×16 > 8×20 for longer spans
- Siding Nailers / 4×4’s these are cut on site
- Knee Braces / typically 4×6 or 4×8 if curved
- Roof System
- Traditional Rafter system
- Rafters / typically 4×10 48” on center or 3×10’s 36” on center
- Traditional Rafter system
- Traditional Timber Bent System
- Bent rafters / typically 8×12’s at each post location with 6×8 or 6×10 cross purlins
- Species
- Fasteners
- Hardwood pegs
- Lag screws
- Turnbuckles for hammerbeam trusses & scissor trusses (if needed)
- Siding / optional inclusion can be removed if preferred by the customer
- 1×8 (.75” x 6.75”) Eastern White Pine ship-lap boards / kiln dried / random length
- Cut to fit on site
- Roof Decking Boards / optional inclusion, and can be removed if preferred by the customer
- 2×8 (1.5” x 6.75”) Southern Yellow Pine tongue & groove boards with decorative v-groove edge / kiln dried / application pattern supplied / cut to fit on site
- Construction Support
- Specific builder recommendations provided if desired
- Pre-building conversations with customers selected builder
- Phone support prior and during construction
Included in Kits that Have a Loft
- Pre-Cut Timber Frame
- Loft Support Girders / 8×10, 8×12, 8×14, 8×16 > 8×20 for longer spans
- Band Joists / typically 8×8 or 8×10, equally spaced depending on spans
- Loft Joists / typically 6×8’s or 6×10’s, depending on spans
- Stair Kit / 3×12 stringer & tread material
- Loft Flooring Boards / optional inclusion, and can be removed if preferred by the customer
- 2×8 (1.5” x 6.75”) Southern Yellow Pine tongue & groove boards with decorative v-groove edge / kiln dried / application pattern supplied / cut to fit on site
Not Included
- Site prep, foundation & pressure-treated sill plate
- Doors & windows typically / A supplier will be recommended so the customer receives exactly what they would like
- Final roofing material (asphalt, metal, etc.)
- Mechanicals / HVAC, electric, plumbing, etc.
- Nails for siding, roof decking, and loft flooring if applicable
- Interior separation walls
- Installation of kit


