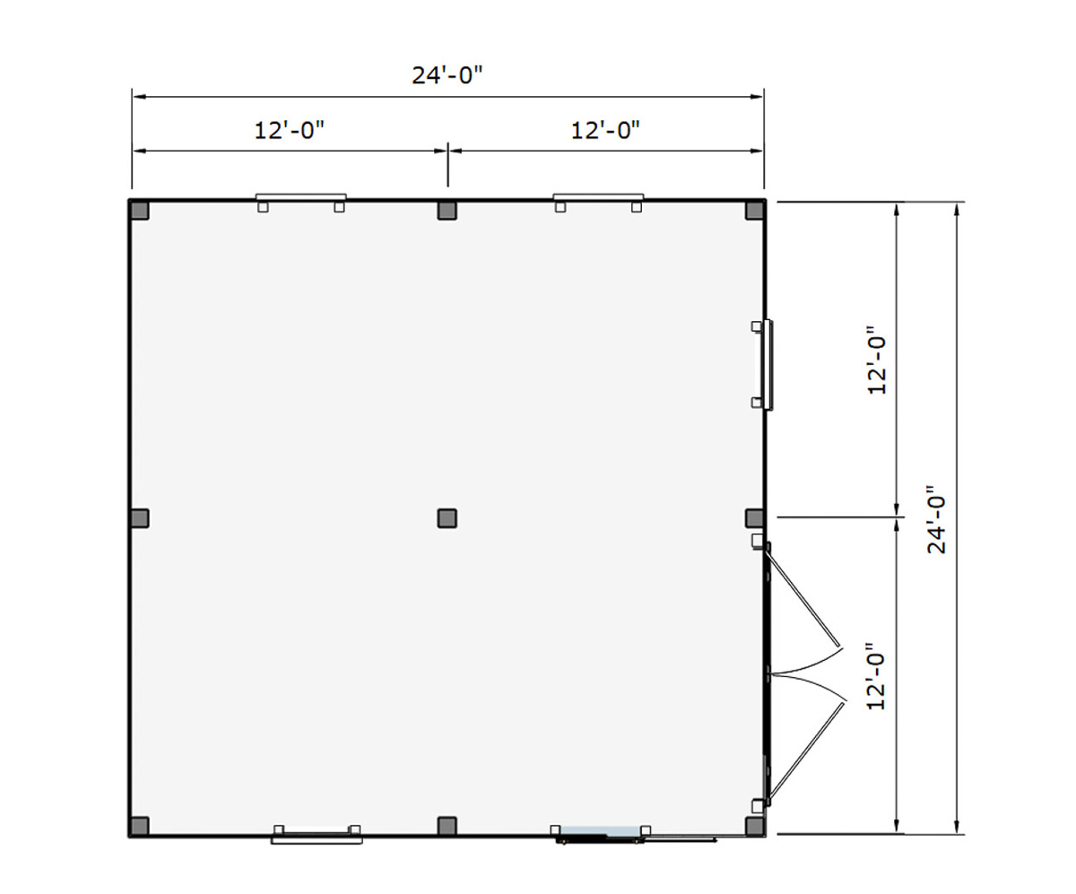
Model #1 Colonial Forge | 24x24
Model #1 Colonial Forge
24x24 | 576 square feet
Starting at $33,671
This single-story Colonial Forge timber frame barn kit combines timeless craftsmanship with everyday versatility. Its classic single-story design makes it as practical as it is beautiful as a garage, workshop, storage space, or even a rustic retreat.
Built with the strength and charm of traditional timber framing, every Colonial Forge kit is crafted to stand the test of time while showcasing the warmth and character of natural wood. With its open interior layout and exposed beam construction, this structure offers both durability and design flexibility—ready to adapt to your needs now and for generations to come. Whether you’re preserving the heritage of New England architecture or simply looking for a sturdy, elegant building that feels right at home on your property, the Colonial Forge delivers that signature Harvest Moon Timber Frame balance of function, beauty, and craftsmanship.
Quoted in full dimension rough sawn hemlock timbers.
HOW DO YOU IMAGINE USING YOUR BARN?
Smaller Barns
Garden or Potting Shed
Tool Shed
Maple Sugar Shack
Smoke House
Out House
Wendy House
Firewood Shelter
Fort
Pool Cabana
Larger Barns
Barn Home Garage / Tractor Barn
Workshop
Horse Barn
Hunting Cabin / Cabin
Studio
Accessory Building
Garage & Apartment
Guest House
WE SOURCE OUR TIMBER IN THE USA
Rough Sawn Hemlock
Planed Hemlock
Rough Sawn Pine
Planed Pine
Rough Sawn Douglas Fir
Planed Douglas Fir
Rough Sawn Red Oak
Planed White Oak
See options below so you can make this barn your own.
Lean-To’s
• Open Air (partially or completely)
• Enclosed (partially or completely)
Length of Barn
Add or subtract a “Bay or Bent”
Roof Overhangs
• Increase or decrease the size
• Straight Cut or Plumb Cut
Barn Doors
• Sliding Barn Doors
• Swinging Barn Doors
• We will make any size you like
Cupolas
• Decorative
• Functional
Timber Frame Accents
• Add a hood over your man door
• Add a rain guard over your garage doors
Gable Peaks
Widow’s Peak / triangular or boxed
Removal of undesired mid-floor posts
Create a structural Truss
• Hammer Beam Truss
• Scissor Truss
• King Post Truss
Insulation
Any of our kits can be insulated without taking away from the frame’s beauty
Raise or lower the wall heights
Loft Area
• Decrease or increase your loft area size
• Create a catwalk
Change your Timber Species
Hemlock, Pine or Douglas Fir
Change your roof pitch
Steeper or shallower
Flexibility is what Harvest Moon does best; please make sure you get exactly what you want.
Standard Options
What's Included
Included in All Kits
- Design Plans
- Pre-Cut Timber Frame
- Fasteners
- Siding / optional inclusion can be removed if preferred by the customer
- Roof Decking Boards / optional inclusion, and can be removed if preferred by the customer
- Construction Support
Included in Kits that Have a Loft
- Pre-Cut Timber Frame
- Band Joists / typically 8×8 or 8×10, equally spaced depending on spans
- Stair Kit / 3×12 stringer & tread material
- 2×8 (1.5” x 6.75”) Southern Yellow Pine tongue & groove boards with decorative v-groove edge / kiln dried / application pattern supplied / cut to fit on site
Not Included
- Site Prep, Foundation & pressure-treated sill plate
- Doors & Windows typically / A supplier will be recommended so the customer receives exactly what they would like
- Final Roofing Material (Asphalt, Metal, etc.)
- Mechanicals / HVAC, Electric, Plumbing, utility hookups Etc.
- Interior separation walls, wall insulation, and interior finishing
- Installation of Kit
All prices shown are for general reference only. Because every timber frame project is custom, final costs may vary based on design, materials, options, location, and site-specific requirements. Please contact us for a detailed quote tailored to your project.


